5 Mountain Brook Road Little Rock AR 72223
$725,000
Call Now: (870) 504-1716
Remarks
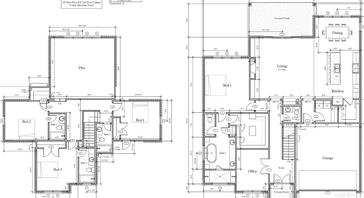
We're excited to introduce Mountain Brook, West Little Rock's newest and most desirable neighborhood. This community is conveniently located off Highway 10, just behind The Ranch and the Bank OZK campus, and only minutes away from Little Rock Christian, Joe T. Robinson, and Don Roberts Elementary. This family-friendly home design features a grand foyer and a spacious open living area with 10-foot ceilings and 8-foot wood doors throughout. The kitchen is equipped with custom-built cabinets, an oversized pantry, and a wet bar off the living room, perfect for entertaining. Step outside to a large covered patio where you can enjoy sunset views of Chenal Mountain. The master suite boasts a decadent design, including huge walk-in closets, a luxurious tub, and a supersized walk-in shower with two shower heads. This home also offers a private office downstairs, with three additional bedrooms, three full bathrooms, and a separate playroom upstairs. This home is set to be complete in Spring 2026. We invite you to come and explore it today! You won't want to miss this.
Rooms
Other Rooms: Office/Study | Bonus Room | Media Room/Theater
Room Sizes
Features
Guttering
Lawn Sprinkler
Covered Patio
Dry Bar
Smoke Detector(s)
Walk-In Closet(s)
Ceiling Fan(s)
Walk-in Shower
